Italiano
20 anni di professionalità

: Appartamento in vendita a S'Andrea di Rovereto

385.000 €
110 m2
2 Camere
2 Bagni
Codice
V000456
Città
Zoagli
Categoria
Appartamento
Locali
4
Piano
Terra
Classe energetica
G
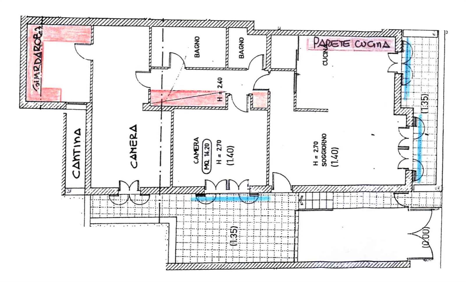
In una delle zone più panoramiche di Chiavari, questo appartamento fa parte di un esclusivo complesso di villette a schiera, offrendo privacy, tranquillità e una splendida vista mare.

L’accesso avviene tramite un cancello privato che conduce a una curata area esterna. L’ingresso si apre su un luminoso soggiorno con terrazzino, perfetto per ammirare il panorama.

La cucina abitabile è funzionale ed elegante, mentre le due camere matrimoniali, di cui una con cabina armadio e studio, garantiscono comfort e spazio.

Completano la proprietà due bagni, un ripostiglio e un posto auto scoperto di fronte all’ingresso. Un’opportunità unica per vivere in un ambiente esclusivo e rilassante.

Questa è un'opportunità unica per vivere in una casa che unisce comodità, tranquillità e una posizione invidiabile, nel cuore di una delle località più ambite della costa ligure.

Per ulteriori informazioni o per organizzare una visita, non esitate a contattarci.

Richiedi altre foto su WhatsApp 328 41 87 925 La nostra Agenzia si trova nel cuore di Santa Margherita Ligure, in Piazza Mazzini n. 18 e segue i seguenti orari: dal lunedì al venerdì dalle ore 9.30 alle 12.30 e dalle ore 15.30 alle 19.00.

Mappa

via sant'andrea di rovereto 1, Zoagli (GE)

Condividi

WhatsApp
Cookie preference